Veresegyház - Bölcsöde

Veresegyház, 60 férőhelyes bölcsőde
Tervezés: 2005. Zsigmond László, munkatárs: Balassa Endre, Orbán Oszkár
Belsőépítészet: Zsigmond Ágnes Kert: Tájrajz Bt, Buella Mónika
Statika: POND Kft Donáczi Péter, Mantuano Tamás
Épületgépészet: Falusi László, Kovács Gyula
Elektromos tervek: Tóth Zoltán, Hegedűs Zoltán
Lebonyolító: Csíky és Tsa Kkt, Csíky Gábor
Kivitelező: Partner Építő KFT , Stibli László
EU pályázaton nyert a város támogatást a bölcsőde építéshez.
A beruházás berendezéssel és felszereléssel, kerttel, kerítéssel és kerti játékokkal
380 MFt költséggel készült
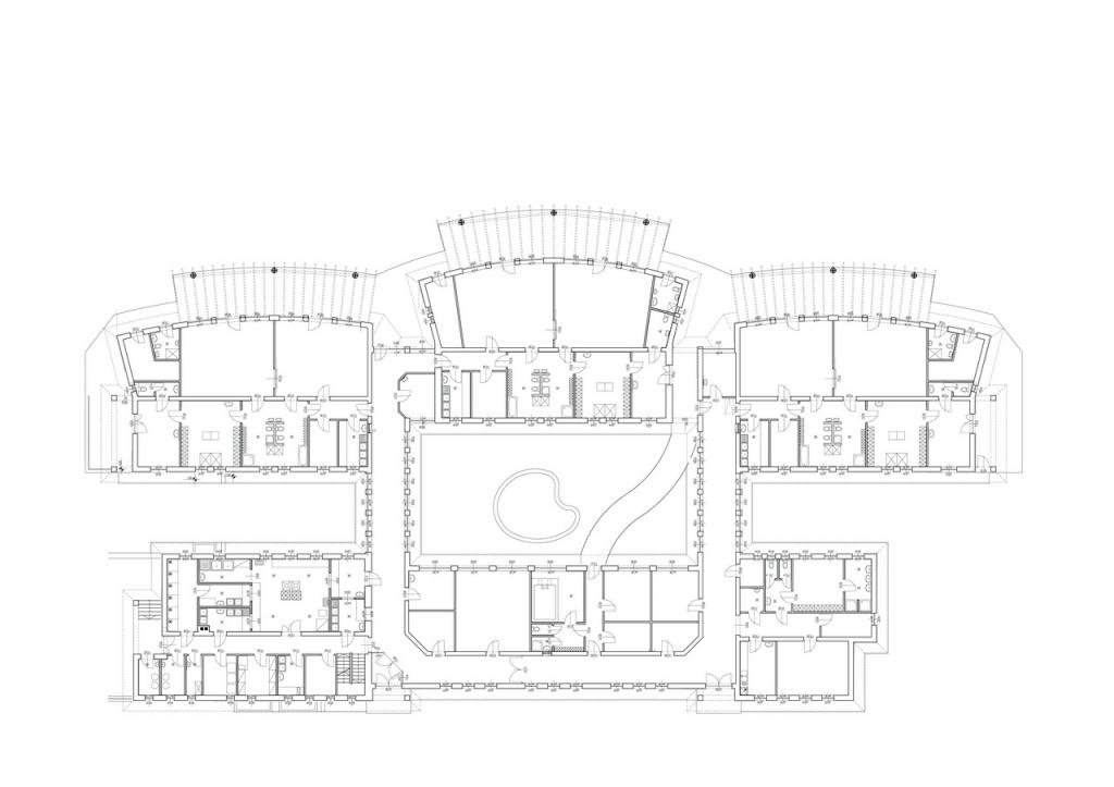
A gyermekliget melletti területen épült fel az 1200 m2-es épület.
3 csoportban, 6 szobában 60 gyermeket lát el az intézmény.
A domboldalon elhelyezkedő ház három hasonló egységből áll. A csoportszobák előtt
a délkeleti fedett teraszok és játszó kert biztosítja a kertvárosi hangulatot.
A gazdasági szárnnyal udvart vesz körül a földszintes épület.
A szobák tetőszerkezete íves ragasztott fa tartó, ami egyben a teraszok lefedésének is tartószerkezete. A fedés áttetsző polikarbonát, ami biztosítja az árnyékolást, de a fényt is átengedi. A szigorú funkcionális elrendezés feloldódik a tagolt épülettömegben és a tornácok által a természetes kertkapcsolat átmeneti terei is a gyermekeket szolgálják.
A beruházás és a kivitelezés a közbeszerzés és a pályázati elszámolás keretei között
kiváló együttműködésben valósult meg, a Város biztosította a minőségi munka feltételeit
és jó gazda módjára ellenőrizte a megvalósulást.
Elvadult világunkban kívánok mindenkinek hasonló szerencsét, a gyermekek lakjanak
sokáig a házban és a kertben.











