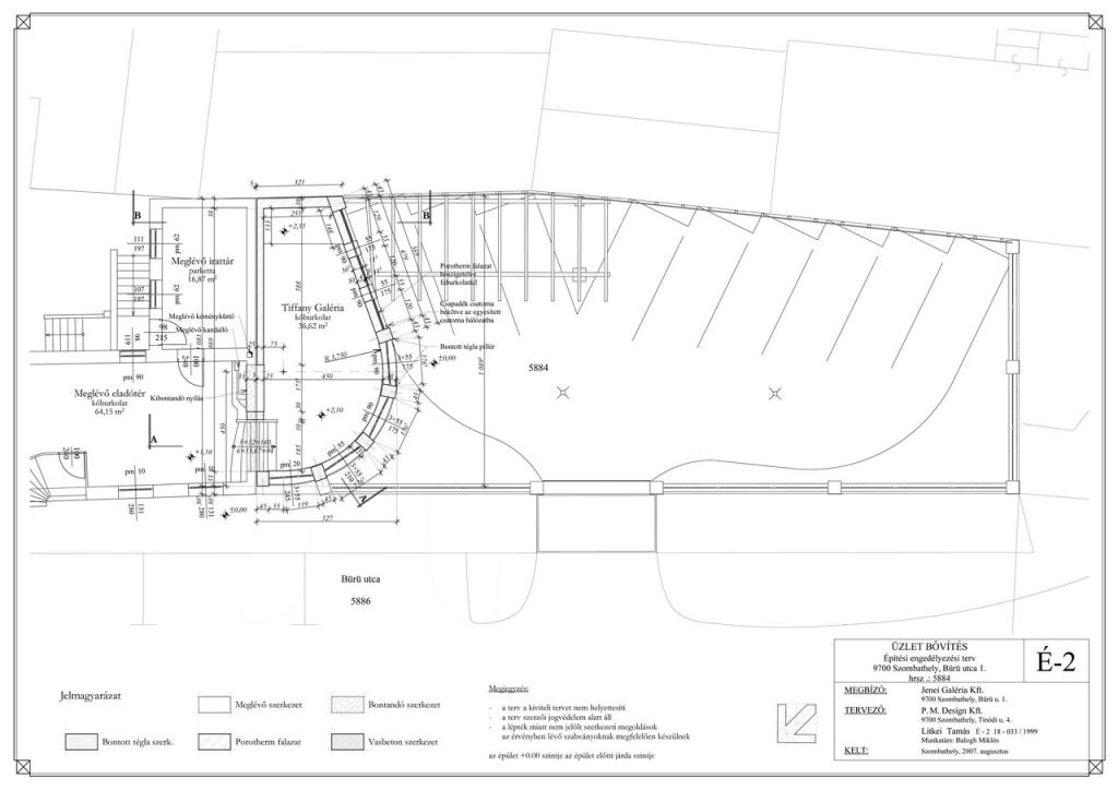
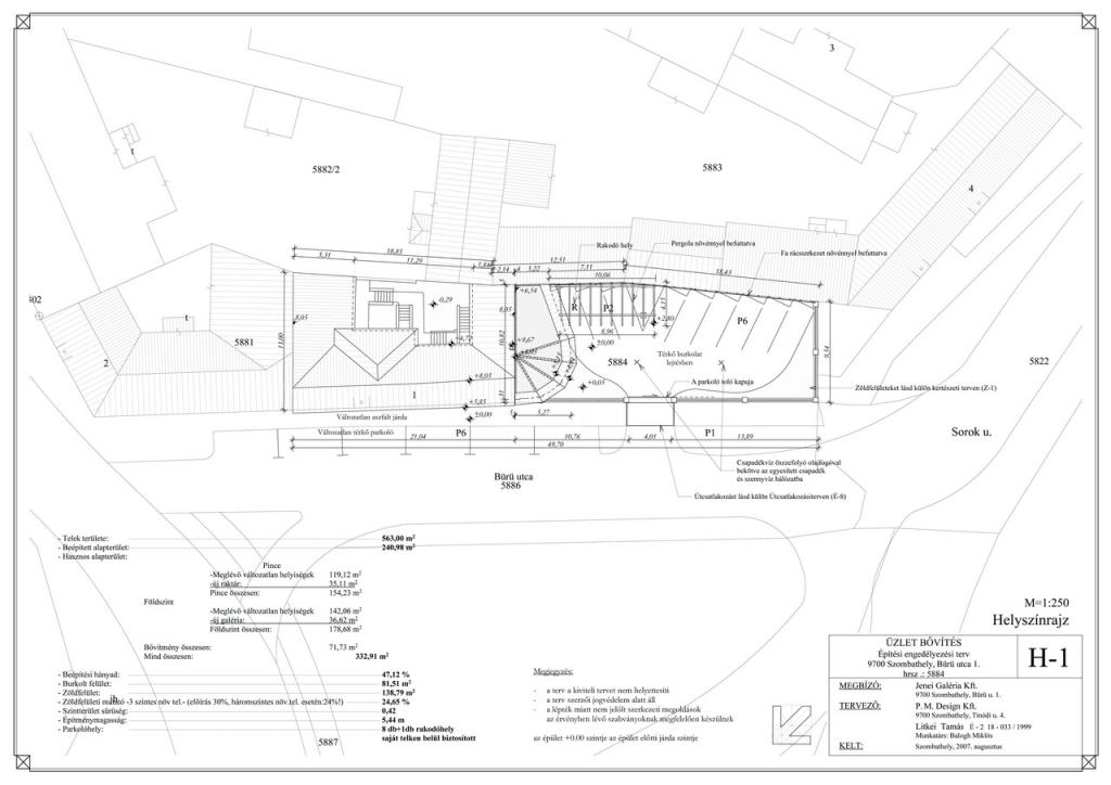
Szombathely - Jenei üveges műhely bővítés
Tervező: Litkei Tamás

Ez az aprónak tűnő, 2008 ban megépült épületbővítés azért fontos számomra, mert Szombathely központjában egy a tulajdonviszonyok, és rendezési tervi anomáliák miatt régóta megoldhatatlannak számító problémára ad -kompromisszumos- választ. Két, kézzel fogható eredménnyel: eltűnik egy jól belátható tűzfal a ?leg?-belvárosban a patakparton úgy, hogy nem épül a helyére semmiféle center...













