Budajenő - ravatalozó

??a Ti halálotok elvont és abszurd Nekem,
a Halálra gondoltok és megöl Bennetek fantáziátok,
megöl majd elszabadult gondolatotok hamis Istene??
(ACTUS: Introduction To The Science Of Death)
Budajenő, 2008
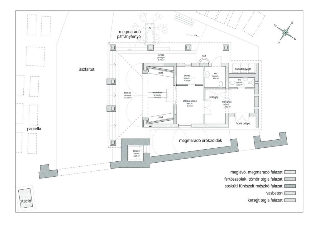
Ravatalozó átépítése
A Semmitől való félelem?az kerülget minket. ?Mi lesz azután? -Semmi?? Üresen koppan a szó, tétován nézi mindenki a cipője orrát, Szerettünk elment és nem maradt utána semmi?
Pedig Semmiből is legalább kétfélét ismerünk, mint minden más fogalomból. Minden fogalmat meghaladhatunk vagy alulmúlhatunk. Van akinek a Semmi tényleg semmi. Aki az anyagba beleragadt, akit az evestrum sötétje beszippantott, annak tényleg mese a halhatatlanság. A világot és önmagát anyagból képzeli, ahhoz ragaszkodik és halálakor saját ?teremtett? világába ? a semmibe ? zuhan, annak maga által hitt törvényei szerint. De hiába képzeli a vulgáris reinkarnáció feltétlen híve is, hogy majd egy új testben éled újjá, ő is csak az anyaghoz és a létesülés örvényéhez köti spirituális és ál-spirituális elemekből szőtt világát, azzal nyugtatva magát, hogy a Semmi az ?nincs is? (minő paradoxon!), de legalábbis ügyesen elkerülhető.
A test nem szűnik meg a halál pillanatában, de lassan felbomlik. A lelkek ?holttestei? is továbbélnek egy darabig, ezeket hiszik a spiritiszták tévesen ?szellemeknek?. De mi érheti el a halhatatlanságot? Mi méltó az öröklétre?
?Én ? mint Önmagam ? halhatatlan vagyok. Annyira vagyok halhatatlan, amennyire Én Önmagam vagyok. Ha abszolút módon, maradéktalanul Önmagam vagyok, akkor a halhatatlanságom maradéktalan és abszolút. A halhatatlanság bennem ? potencialitásként ? mindig jelen van.? (László András: Tradicionalitás és létszemlélet)
A Semmi meghaladása: Üresség. Az Üresség a teljes Feltétel-nélküliség, a Metafizikai Felébredés alapfeltétele. A minden kötöttségtől megszabadult Önmagam visszavezetése - Önmagam által - Önmagamba.
A meglévő, kétállásos garázsra hasonlító ravatalozó ?felöltöztetése? volt a feladat. A semmi átlényegítése Ürességgé. A kettős határhelyzetben álló épületnek egyszerre kellett elválasztania az élők városát a holtak városától és megteremteni egy méltóságteljes búcsúztatás rítusának díszleteit azoknak, akik utoljára lépik át ezt a határt.
Kuli László
építész













