Ugrás a tartalomra
Országépítő
Építészet | Környezet | Társadalom
Menü
Hírek
Épületek
Nézőpont
Média
Vándoriskola
Könyvek
Előfizetés
Élőépítészet
folytatni a Teremtést - Magyar élő építészet a 20 éves Kós Károly Egyesülés kiállítása az Iparművészeti Múzeumban
Épületek
Elődök
Külföld
Időrend
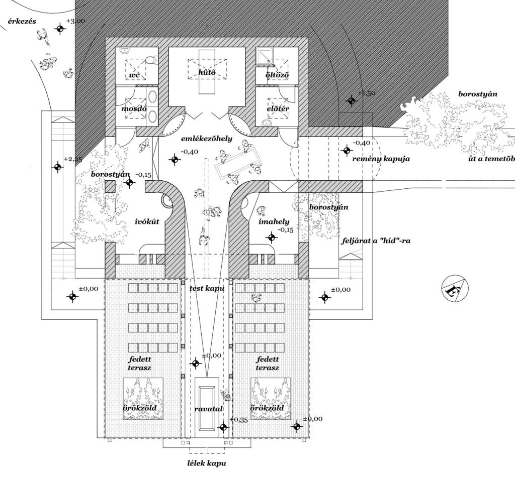
Bonyhád - Városháza átalakítása
Tervező: Csernyus Lőrinc
Időrend
1900
1959
1964
1965
1966
1968
1970
1972
1974
1975
1976
1977
1978
1979
1980
1981
1982
1983
1984
1985
1986
1987
1988
1989
1990
1991
1992
1993
1994
1995
1996
1997
1998
1999
2000
2001
2002
2003
2004
2005
2006
2007
2008
2009
Jelenlegi hely
Címlap
»
Időrend
»
2008
Vándoriskola - felvételi - 2008